Objektart
Adresse
Objektdaten
Informationen
Ausstattung
Details
In Oberhausen-Holten erwartet Sie ein charmantes Einfamilienhaus mit viel Potenzial zur individuellen Gestaltung. Bitte schauen Sie sich die aktuellen Grundrisse an und lassen Sie Ihrer gestalterischen Fantasie freien lauf.
Die Immobilie bietet ca. 103 m² Wohnfläche, verteilt auf zwei Ebenen, und wird durch einen vollunterkellerten Bereich ergänzt, der zusätzlichen Raum für Hobby, Lager oder Ausbauideen schafft.
Das Haus befindet sich in einem teilweise renovierten Zustand und bietet eine solide Basis für weitere Modernisierungen. Vor etwa 15 Jahren wurde die Fassade erneuert und gedämmt, ebenso wurde das Badezimmer im Keller modernisiert. Dennoch besteht in einigen Bereichen noch Sanierungsbedarf, wodurch sich besonders für handwerklich Begabte oder Familien mit eigenen Gestaltungsideen attraktive Möglichkeiten ergeben.
Der großzügige Garten in Südlage lädt zum Entspannen und Spielen ein und bietet ideale Bedingungen für Familien mit bis zu zwei Kindern. Hier genießen Sie sonnige Stunden im Freien und ausreichend Platz für individuelle Gartengestaltung.
Abgerundet wird dieses Angebot durch eine praktische Doppelgarage, die ausreichend Stellfläche für Fahrzeuge und zusätzlichen Stauraum bietet. Die ruhige Lage in Oberhausen verbindet angenehmes Wohnen mit guter Erreichbarkeit von Einkaufsmöglichkeiten, Schulen und weiteren Einrichtungen des täglichen Bedarfs.
Diese Immobilie ist ideal für alle, die ein Zuhause mit Charakter suchen und ihre eigenen Wohnträume verwirklichen möchten.
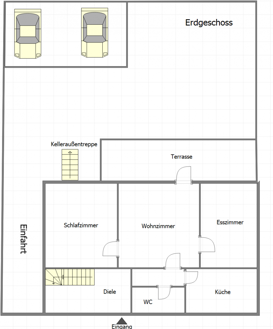
Erdgeschoss, ca. 51,5m²:
- Treppenhaus mit Auf- und Abgang
- WC
- Küche
- Esszimmer
- Wohnzimmer mit Ausgang zur Terrasse und zum Garten
- Schlafzimmer
Obergeschoss, ca. 51,5m²:
- Schlafzimmer
- Schlafzimmer mit Ankleidezimmer
- WC
- Küche
Keller:
- Abstellräume
- Bad mit Dusche
- Waschküche mit Außentreppe
- Heizungskeller
Das Dachgeschoss kann als zusätzliche Staufläche verwendet werden
Das Objekt liegt in einem ruhigen, gewachsenen Wohngebiet von Oberhausen- Holten und bietet eine angenehme Mischung aus familienfreundlicher Umgebung und guter Infrastruktur. Einkaufsmöglichkeiten, Schulen, Kindergärten sowie Ärzte sind in wenigen Minuten erreichbar. Die Anbindung an den öffentlichen Nahverkehr ist gut, und auch die umliegenden Autobahnen ermöglichen eine schnelle Verbindung in die Nachbarstädte des Ruhrgebiets. Grünflächen und Freizeitmöglichkeiten befinden sich ebenfalls in der Nähe und sorgen für einen hohen Wohn- und Erholungswert.
Alle Angaben bassieren auf Aussage des Eigentümern, Irrtümer vorbehalten.
Energieausweis (Bedarfsausweis)
249 kWh / (m²*a) Endenergiebedarf
249 kWh / (m²*a) Endenergiebedarf
249 kWh / (m²*a) Endenergiebedarf
Weitere Informationen
| Wesentlicher Energieträger | Gas |
| Energieausweis Ausstelldatum | 2026-03-23 |
| Energieausweis gültig bis | 22.03.2036 |
| Energieausweis Jahrgang | ab dem 1.5.2014 |
| Energieausweis Werteklasse | G |
| Energieausweis Baujahr | 1951 |
| Energieausweis Gebäudeart | Wohngebäude |
| Befeuerung | Gas |
Ich bin damit einverstanden, dass mir Karten von Google angezeigt werden. Es gelten die Datenschutzbedingungen von Google (https://policies.google.com/privacy).
Ich bin einverstanden